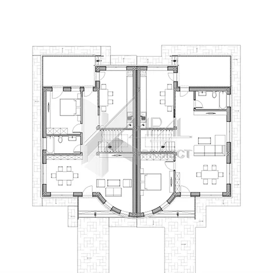
Parter
Nod vertical de circulație bine poziționat, cu acces facil din hol
Living de 42,05 mp – zonă de zi luminoasă, ideală pentru dining și social
Bucătărie separată de 17,70 mp – spațiu generos pentru insulă/masă de mic dejun
Dormitor de 16,10 mp – perfect ca birou, cameră de oaspeți sau pentru seniori
Baie de 5,17 mp – deservire parter
Terasă de 15,30 mp – legătură directă cu livingul, pentru mese în aer liber
Etaj 1
Nod vertical + hol de 4,74 mp – distribuție eficientă
Living secundar de 30,43 mp – zonă flexibilă (lounge, media, bibliotecă, home office)
Baie de 5,10 mp – deservire etaj
Dormitor de 14,39 mp – ideal pentru copii sau oaspeți
Dormitor matrimonial de 15,81 mp cu balcon de 7,64 mp – retragere intimă, orientată spre lumină












