K029 propune o locuință individuală modernă, dezvoltată pe verticală (S + P + 1E + 2E retras), gândită pentru un stil de viață urban, dinamic. Deși amprenta la sol este compactă (123,17 mp), planimetria „pe înălțime” oferă 328,05 mp utili și 136,02 mp de terase și balcoane care extind confortul către exterior.
Volumetria finală pune în valoare verticalitatea compozițională, iar jocul dintre placajele HPL în aceeași gamă cromatică — de la alb la gri închis — creează un degrade elegant, accentuând dinamismul fațadelor. Terasele și balcoanele funcționează ca punți între interior și exterior, aducând lumină naturală și perspective ample către împrejurimi.
Funcțiunile sunt dispuse echilibrat între niveluri, astfel încât zona de zi rămâne deschisă și primitoare la parter, iar nivelurile superioare grupează spațiile private și de lucru. Acoperișul tip terasă necirculabilă păstrează linia contemporană a volumului retras la etajul 2, contribuind la o imagine arhitecturală coerentă și rafinată. Lipsa garajului este compensată de spații tehnice bine dimensionate și soluții de depozitare integrate, menținând curățenia vizuală a interioarelor.
Dimensiunile generale (13,30 m lungime × 12,90 m lățime) și parametrii de suprafață recomandă proiectul pentru loturi urbane, unde eficiența și claritatea circulațiilor sunt esențiale. K029 oferă flexibilitate pentru familii active: living cu loc de luat masa, bucătărie generoasă, birou izolat la etajul 1, dormitor matrimonial complet echipat și zone de relaxare la etajul retras, cu deschidere către terasă.
Subsol
Spații tehnice/auxiliare conform proiectului (depozitare, utilități), optimizate pentru mentenanță și pentru a elibera suprafețele utile de la nivelurile superioare.
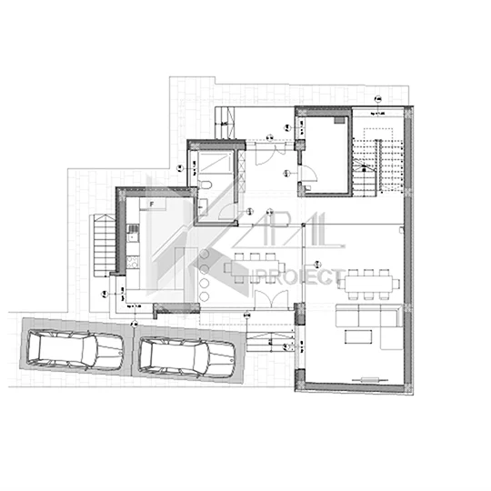
Parter
Nod vertical de circulație
Hol de acces – 15,01 mp
Bucătărie – 31,17 mp (configurabilă cu insulă/zonă de mic dejun)
Living + loc de luat masa – 31,89 mp (deschidere către exterior)
Baie – 5,36 mp
Spațiu tehnic – 6,97 mp
Parterul reunește zona de zi într-un open-space coerent, favorizând fluxurile naturale între gătit, servit masa și relaxare, cu acces facil la terase.
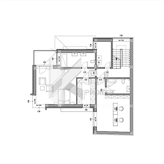
Etaj 1
Nod vertical de circulație
Hol – 5,74 mp
Spălătorie – 6,73 mp
Birou – 24,09 mp + Baie – 6,30 mp (ideal pentru lucru de acasă/telemuncă)
Dormitor matrimonial – 28,41 mp
Dressing – 8,258 mp
Baie – 9,02 mp
Balcon – 5,95 mp
Etajul 1 propune o zonă parentală completă (dormitor + dressing + baie) separată de biroul cu baie proprie, asigurând intimitate și productivitate.
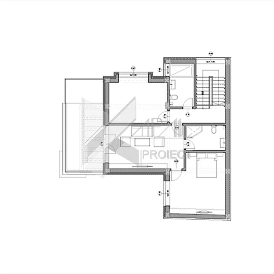
Etaj 2 retras
Nod vertical de circulație
Hol distribuție – 5,82 mp
Baie – 6,73 mp
Cameră – 16,12 mp
Cameră de zi – 20,53 mp cu acces la terasă – 21,46 mp
Baie – 6,30 mp
Dormitor – 19,97 mp
Etajul retras devine zona de relaxare & hobby, cu cameră de zi deschisă către terasă, completată de două camere și două băi, potrivite pentru copii, oaspeți sau activități recreative.














