Locuință urbană modernă, P+2E, care îmbină inteligent funcțiunea comercială la nivelul parterului cu o zonă rezidențială generoasă pe etajele superioare. Volumetria clară, logiile adâncite și contrastul alb–antracit pun în valoare compoziția fațadelor, iar panourile TRESPA la parter diferențiază vizual baza clădirii și îi conferă rezistență în timp în zona cu trafic.
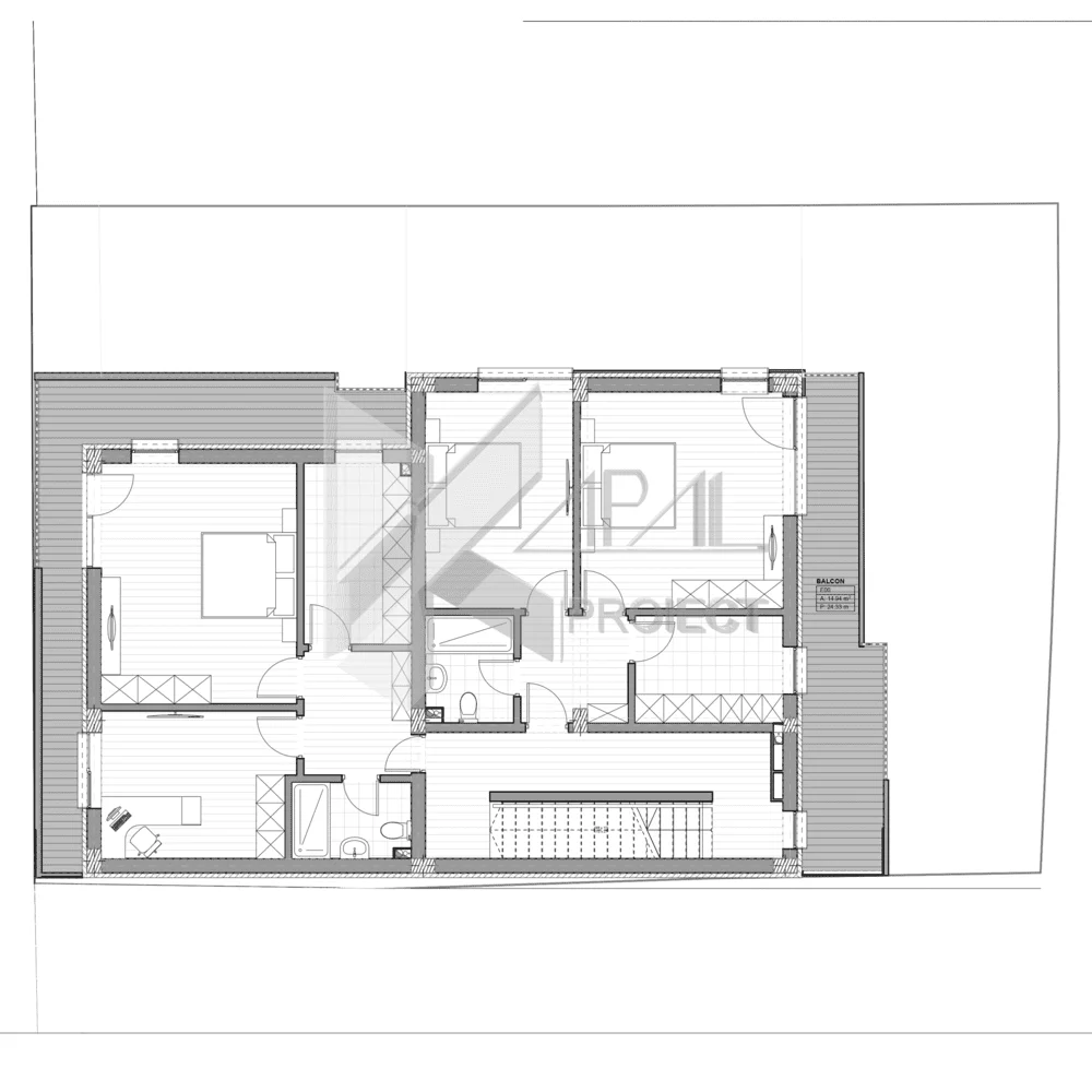
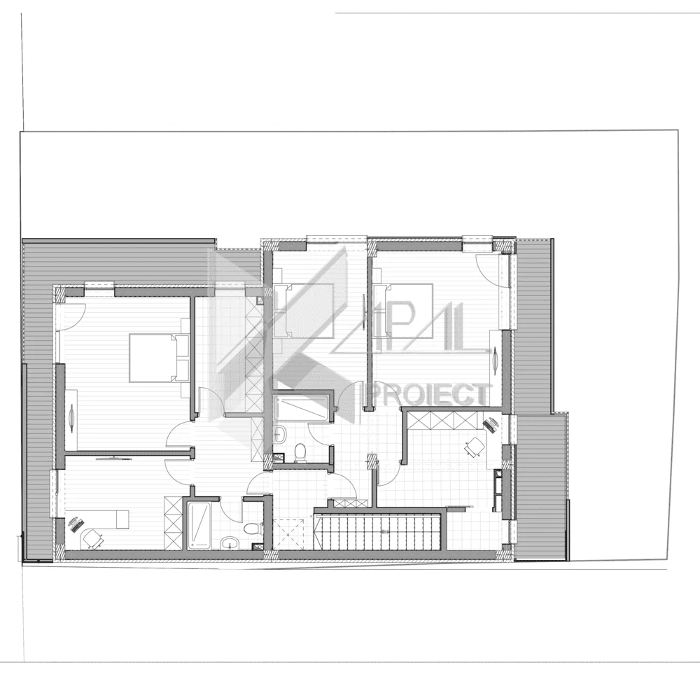
Cu 330,10 mp utili și balcoane de 94,65 mp, casa oferă spații deschise pentru socializare, dar și dormitoare bine proporționate, birouri pentru lucru de acasă și dressinguri pentru o organizare impecabilă. Balustradele din sticlă sporesc luminozitatea și transparența teraselor, în timp ce tâmplăria PVC antracit subliniază caracterul contemporan.
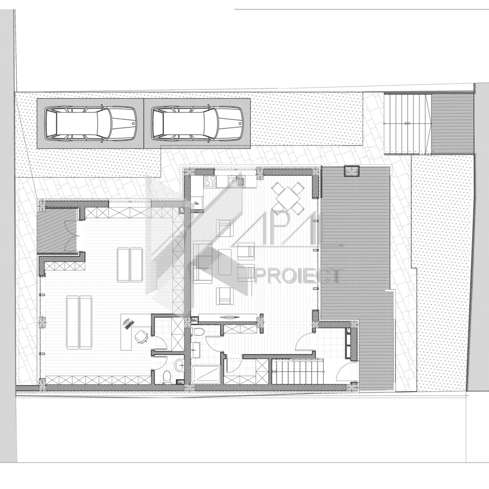
Planimetria este gândită pentru fluxuri naturale: acces facil la funcțiunea comercială, living cu bucătărie open-space și ieșire pe terasa de 28,39 mp, apoi distribuții simple și eficiente pe etaje printr-un nod vertical compact. Acoperișul tip terasă necirculabilă confirmă linia modernă și permite întreținere ușoară.













