Această casă modernă este concepută ca o locuință urbană cu regim de înălțime Parter + 2 Etaje, având o volumetrie clară, proporții echilibrate și o organizare funcțională care permite integrarea unei funcțiuni comerciale la nivelul parterului, fără a afecta intimitatea zonei rezidențiale. Clădirea se remarcă printr-o arhitectură contemporană, cu fațade articulate prin retrageri, logii și balcoane generoase.
Parterul găzduiește zona cu caracter public și spațiile principale de zi, în timp ce etajele sunt dedicate zonei de noapte și activităților de lucru sau studiu. Organizarea pe verticală asigură separarea clară a fluxurilor și o utilizare eficientă a spațiilor.
Din punct de vedere estetic, fațadele sunt tratate preponderent cu tencuială decorativă albă, completată de accente gri închis antracit pentru evidențierea adâncimilor logiilor. Parterul este diferențiat prin utilizarea panourilor TRESPA în nuanțe tomnatice. Tâmplăria PVC gri antracit și balustradele din sticlă securizată completează imaginea modernă a clădirii.
Locuința are o lungime maximă de 15.10 m, o lățime de 10.60 m, o amprentă la sol de 136.96 mp, o suprafață desfășurată totală de 531.33 mp (din care 94.65 mp balcoane) și o suprafață utilă de 330.10 mp. Acoperișul este de tip terasă necirculabilă.
Parter
Acces – 3.82 mp
Spațiu comercial – 44.29 mp
Depozitare – 2.24 mp
Grup sanitar – 1.87 mp
Nod vertical de circulație
Windfang – 2.03 mp
Living + bucătărie – 44.73 mp
Baie – 3.93 mp
Terasă – 28.39 mp
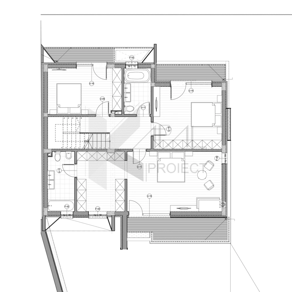
Etaj 1
Nod vertical de circulație
Hol – 12.97 mp
Hol – 5.85 mp
Baie – 3.92 mp
Birou – 12.27 mp
Dormitor – 20.70 mp
Dressing – 8.00 mp
Balcon – 18.19 mp
Hol – 4.97 mp
Baie – 4.08 mp
Dressing – 6.97 mp
Dormitor – 14.11 mp
Dormitor – 19.31 mp
Balcon – 14.94 mp
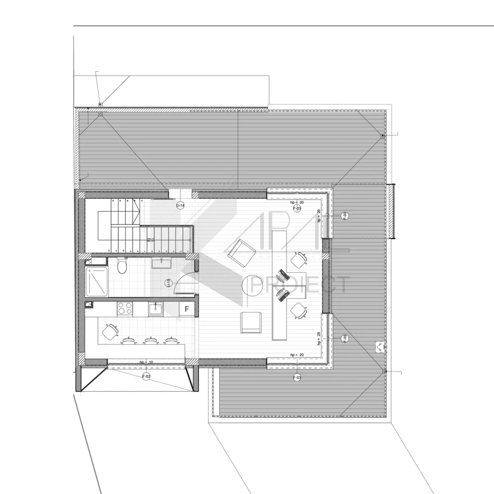
Etaj 2
Nod vertical de circulație
Hol – 4.23 mp
Hol – 6.00 mp
Baie – 3.92 mp
Birou – 12.27 mp
Dormitor – 20.70 mp
Dressing – 8.50 mp
Balcon – 18.19 mp
Hol – 5.43 mp
Baie – 4.04 mp
Dormitor – 14.71 mp
Dormitor – 21.80 mp
Birou – 10.85 mp
Depozitare – 2.25 mp
Balcon – 14.94 mp













