Se propune un hotel modern în Eforie, poziționat în imediata vecinătate a lacului, cu un concept arhitectural care traduce nuanțele turcoaz-alb-gri ale apei în fațade curate și luminoase. Volumetria compactă S+P+3E optimizează circulațiile și compartimentarea pentru a livra 38 de camere confortabile, fiecare cu baie proprie și balcon orientat spre lumină și peisaj.
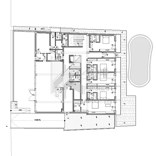
La subsol, o parcare generoasă (493,37 mp) preia fluxurile auto, eliberând parterul pentru funcțiunile de primire și ospitalitate. Spațiile tehnice – camera pompelor de incendiu (8,19 mp), hidrofor (11,19 mp) și ECS+TEV (1,47 mp) – sunt poziționate logic pentru exploatare facilă și mentenanță.
Parterul este gândit ca un nucleu social al clădirii, cu recepție 85,43 mp și zonă de așteptare, completate de bucătărie 17,23 mp, depozitare, administrare, vestiare și un ansamblu complet de grupuri sanitare pentru public și personal. Cinci camere la parter (26,46 mp; 17,65 mp; 17,54 mp; 17,65 mp; 20,14 mp) oferă opțiuni flexibile pentru oaspeți, fiecare cu baie proprie (4,73 mp; 3,57 mp; 3,50 mp; 3,67 mp; 3,89 mp).
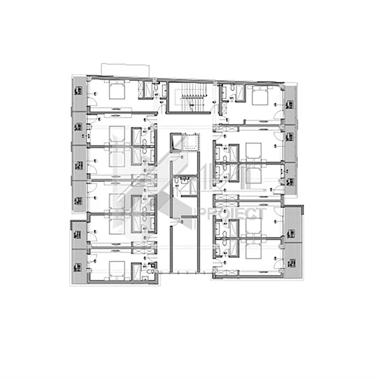
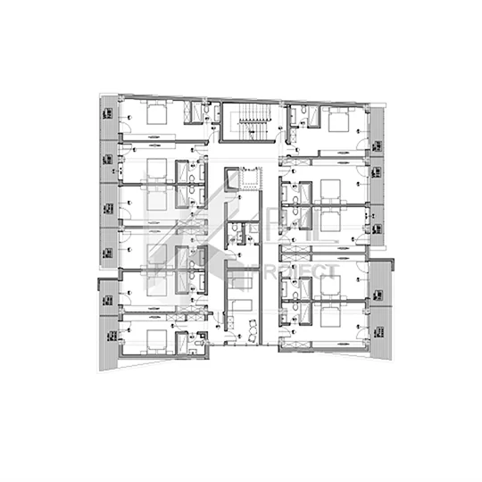
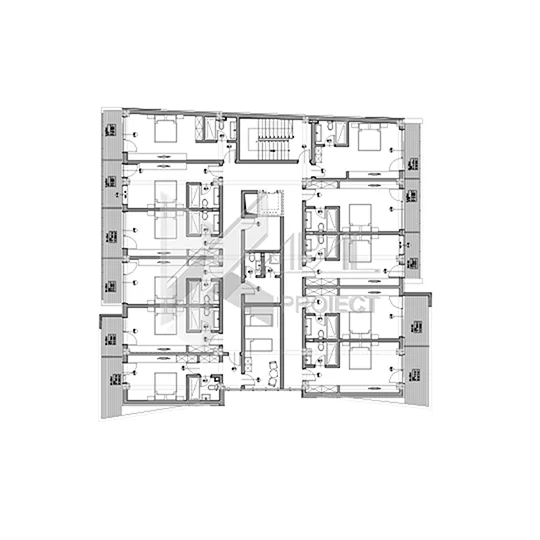
Etajele 1–3 sunt dedicate cazării, câte 11 camere/etaj (20 mp fiecare), toate cu băi proprii (4 mp) și balcoane individuale (~5 mp). Logistica housekeeping-ului este integrată: depozit lenjerie curată (19,41 mp), depozit lenjerie murdară (6,11 mp) și oficiu (6,24 mp), plus vestiare separate femei/bărbați cu grup sanitar și duș, conform cerințelor operaționale. Holurile largi (61,77 mp la etajul 1 și 48,34 mp la etajele 2–3) asigură circulații fluide și acces facil la nodul vertical.
La nivelul superior, o terasă circulabilă (34,31 mp) creează un punct de belvedere asupra lacului, în timp ce spațiul verde (398,71 mp) completează experiența oaspeților cu zone de relaxare la exterior. Parasolarele din aluminiu în nuanță de gri închis protejează balcoanele și vitrajele, îmbunătățind confortul termic și eficiența energetică, iar paleta turcoaz-alb-gri ancorează vizual clădirea în peisajul lagunar.
Din punct de vedere al indicatorilor, proiectul oferă Suprafață desfășurată totală 2 758,95 mp (din care balcoane 1 013,36 mp), Suprafață utilă 1 953,73 mp, amprentă 415,22 mp, iar acoperișul tip terasă permite eventuale extinderi de amenajări exterioare (sky-lounge, zone verzi extensive), în acord cu normele.















