Acest proiect este un hotel modern și cochet (D+P+3E) conceput pentru fluxuri clare între zona oaspeților și cea operațională, cu un limbaj arhitectural minimalist care pune în valoare balcoanele ca element de identitate. Fațadele utilizează o paletă alb–gri echilibrată, completată de panouri tip TRESPA maro și tâmplării gri antracit, oferind o imagine contemporană, durabilă la exterior.
La exterior, parterul integrează parcarea, o zonă generoasă de loisir și o piscină destinată relaxării oaspeților. În interior, recepția amplă, camerele bine dimensionate și balcoanele generoase (249,76 mp cumulat) susțin confortul urban al proiectului.
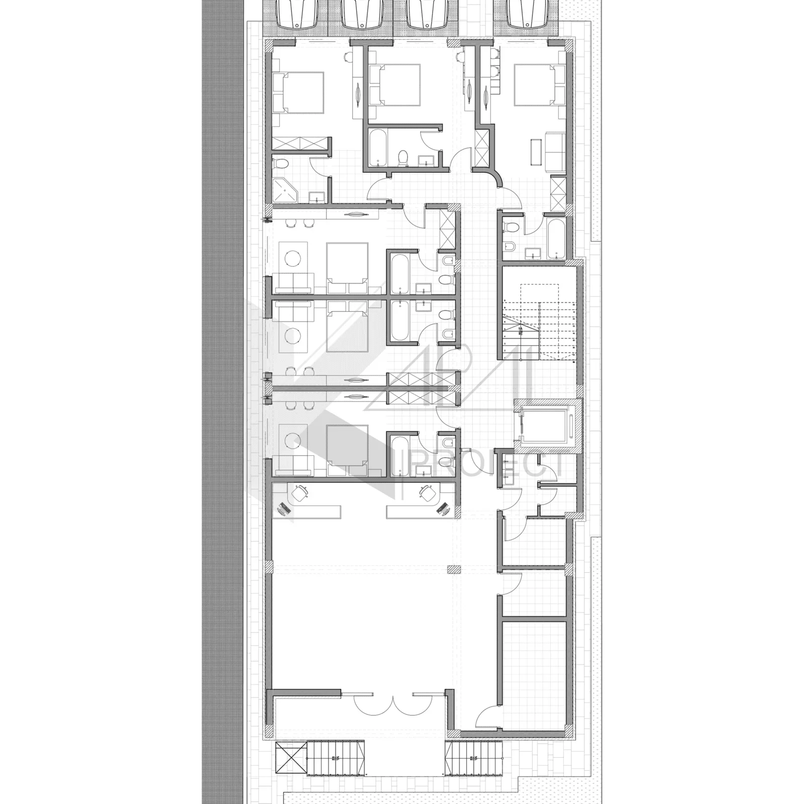
Din punct de vedere funcțional, demisolul colectează toate spațiile de producție/servicii (mic dejun, bucătărie, spălătorie, vestiare, camere tehnice), iar parterul concentrează experiența oaspeților (lobby & recepție, camere, servicii). Etajele 1–3 repetă un tipar de 10 camere pe nivel, ceea ce simplifică operarea, mentenanța și housekeeping-ul (fiecare nivel are oficiu cameriste).
Demisol
Circulații: hol 16,43 mp + hol 6,38 mp + hol 17,14 mp; lift și nod vertical
Grupuri sanitare publice: GS 3,24 mp; WC bărbați 1,55 mp, WC femei 1,42 mp, GS persoane cu dizabilități 4,47 mp
F&B: sală mic dejun 96,84 mp, bucătărie 40,36 mp, depozit 10,94 mp + depozit 8,30 mp
Linen & spălătorie: spălătorie 12,47 mp
Vestiare personal: vestiar bărbați 5,04 mp + duș 1,67 mp + WC 1,65 mp; vestiar femei 5,28 mp + WC 1,64 mp + duș 1,72 mp
Tehnic & utilități: IDSAI & ECS 3,72 mp, camera pompe 10,31 mp, camera deșeuri 5,29 mp
Accese: 4,06 mp și 6,96 mp (livrări/evacuare/tehnic)
Parter
Acces principal: 15,11 mp
Lobby + recepție: 71,89 mp (zonă de așteptare, check-in, control acces lift/scară)
Administrație: birou 10,27 mp; cameră bagaje 4,40 mp
Grup sanitar public: 3,24 mp (include WC bărbați 1,61 mp, WC femei 1,46 mp, GS persoane cu dizabilități 4,32 mp)
Circulații: hol/casă scării 23,77 mp, lift și nod vertical
Unități de cazare (6):
Camera 1: cameră 14,48 mp | hol 4,01 mp | baie 4,00 mp
Camera 2: hol 4,01 mp | baie 3,98 mp | cameră 14,48 mp
Camera 3: hol 4,02 mp | baie 3,85 mp | cameră 14,44 mp
Camera 4: hol 3,54 mp | baie 4,05 mp | cameră 13,86 mp
Camera 5: hol 2,86 mp | baie 4,01 mp | cameră 12,16 mp
Camera 6: hol 3,18 mp | baie 4,19 mp | cameră 15,42 mp
Etaj 1-3
Circulații: hol 30,61 mp; lift și nod vertical
Suport housekeeping: oficiu cameriste 6,39 mp
Unități de cazare (Camerele 7–16 – tipar repetat pe fiecare etaj):
Camera 7: hol 3,54 mp | baie 4,05 mp | cameră 13,86 mp | balcon 16,69 mp
Camera 8: hol 4,02 mp | baie 3,83 mp | cameră 14,44 mp | balcon 4,65 mp
Camera 9: hol 2,86 mp | baie 4,01 mp | cameră 12,16 mp | balcon 4,31 mp
Camera 10: hol 3,37 mp | baie 4,12 mp | cameră 15,23 mp | balcon 5,89 mp
Camera 11: hol 4,01 mp | baie 4,00 mp | cameră 14,48 mp | balcon 4,95 mp
Camera 12: hol 4,01 mp | baie 3,98 mp | cameră 14,48 mp | balcon 4,95 mp
Camera 13: hol 4,02 mp | baie 3,85 mp | cameră 14,44 mp | balcon 4,95 mp
Camera 14: hol 3,54 mp | baie 4,05 mp | cameră 13,93 mp | balcon 12,41 mp
Camera 15: hol 2,86 mp | baie 4,02 mp | cameră 12,16 mp | balcon 5,85 mp
Camera 16: hol 3,18 mp | baie 4,20 mp | cameră 15,42 mp | balcon 5,44 mp













