Acest proiect propune o locuinta individuala clasica cu note franceze, gandita pentru familii care apreciaza eleganta discreta si lumina naturala abundenta. Fatadele sunt curate si echilibrate, cu detalii decorative atent dozate care nu incarca volumetria. Ferestrele generoase ale livingului si dormitoarelor devin semnatura compozitiei, invitand lumina sa patrunda adanc in spatiile interioare si conturand un ambient cald pe tot parcursul zilei.
Volumetria compacta este animata de balcoane fine si ancadramente clasice, iar contrastul dintre finisajele bej–alb si tamplaria inchisa accentueaza caracterul francez al casei. La interior, planimetria este clara: zona de zi aerisita la parter faciliteaza fluxul cotidian, in timp ce etajul concentreaza intimitatea – trei dormitoare bine proportionate, dintre care unul matrimonial cu baie proprie, precum si o depozitare incapatoare.
Cu o suprafata utila de 168,70 mp si o suprafata desfasurata de 234,60 mp, K102 optimizeaza fiecare metru patrat pentru confort si functionalitate. Materialele propuse – tencuiala si piatra – asigura durabilitate si o prezenta atemporala, iar acoperisul tip sarpanta completeaza armonios expresia clasica a ansamblului.
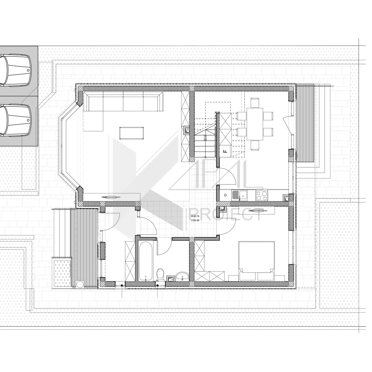
Parter
Acces principal – 5,50 mp, protejeaza intrarea si introduce in zona de primire
Vestibul – 5,92 mp, zona de tranzit si depozitare pantofi/haine
Hol – 9,75 mp cu nod vertical de circulatie (scara) pozitionat eficient
Baie – 5,10 mp, deserveste zona de zi si dormitorul de la parter
Living – 31,92 mp, spatiu generos, vitratia ampla catre curte ofera continuitate interior–exterior
Dormitor 1 – 15,40 mp, ideal ca birou, camera oaspeti sau dormitor pentru seniori
Bucatarie – 18,99 mp, separata, cu loc pentru masa si relatie directa cu zona de zi
Acces secundar – 3,43 mp, functional pentru iesiri rapide spre curte/zona de servicii
Etaj 1
Nod vertical de circulatie si Hol – 12,68 mp, distribuie clar catre zona de noapte
Depozitare – 7,44 mp, spatiu generos pentru lenjerii/sezonier
Balcon principal – 9,50 mp, pe fatada posterioara, ideal pentru relaxare
Dormitor 1 – 11,44 mp, perfect pentru copil sau camera de lucru
Baie – 5,53 mp, comuna pentru doua dormitoare
Dormitor 2 – 15,87 mp, cu balcon de 4,22 mp – lumina si ventilatie naturale excelente
Dormitor matrimonial – 23,06 mp, confort sporit, baie proprie de 5,62 mp












