Această locuință individuală este concepută într-un limbaj arhitectural clasic, având regim de înălțime Parter + Etaj 1 și o compoziție echilibrată, care îmbină caracterul impunător cu eleganța detaliilor. Volumetria este compactă și bine proporționată, iar fațadele sunt articulate prin ancadramente delicate și goluri vitrate generoase, care permit luminii naturale să pătrundă în profunzimea spațiilor.
Balcoanele sunt tratate într-o notă contemporană, prin utilizarea balustradelor din sticlă, creând un contrast subtil cu limbajul clasic al clădirii. Finisajele în nuanțe alb-crem, completate de piatră decorativă crem și ancadramente albe din polistiren expandat, conferă construcției o imagine luminoasă, curată și elegantă.
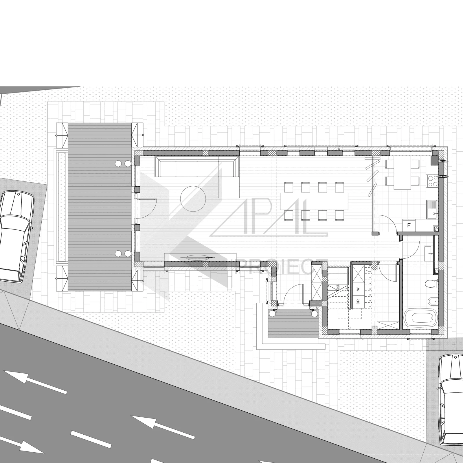
Locuința are o suprafață desfășurată totală de 256,44 mp, o suprafață utilă de 162,64 mp și este acoperită cu șarpantă.
Parter – Zonă de zi
Acces – 3.26 mp
Hol – 3.66 mp
Nod vertical de circulație
Spațiu tehnic – 5.71 mp
Baie – 7.09 mp
Bucătărie – 11.04 mp
Living + loc de luat masa – 56.91 mp
Terasă – 23.86 mp
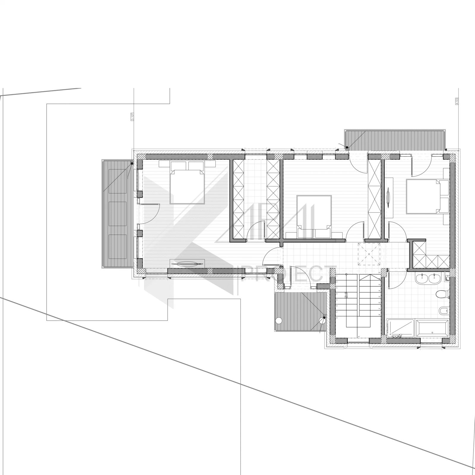
Etaj 1 – Zonă de noapte
Nod vertical de circulație
Hol – 9.04 mp
Baie – 8.99 mp
Dormitor A
Dormitor – 13.18 mp
Balcon – 4.05 mp
Dormitor B
Dormitor – 16.42 mp
Dormitor C
Dormitor – 22.75 mp
Dressing – 7.85 mp
Balcon – 6.79 mp












