Locuință clasică tratată într-o notă modernă, în care proporțiile, ritmul golurilor și claritatea volumelor se combină cu un limbaj sobru, minimal. Fațadele din tencuială fină albă și inserțiile de travertin gri conturează o expresie contemporană, elegantă, completată de tâmplăria neagră și detaliile discrete ale balustradelor. Rezultă o arhitectură curată, fără ornament excesiv, în care accentul cade pe lumină, spațiu și funcționalitate.
Planul funcțional este conceput pentru viața de zi cu zi: la parter, zona de zi este fluidă, cu living + loc de luat masa (29,07 mp) și bucătărie separată (15,67 mp) conectată la o depozitare (6,12 mp), utile pentru organizare. Un birou (9,18 mp) susține lucrul de acasă, iar grupul sanitar (4,56 mp) deservește vizitatorii. Garajul (17,12 mp) asigură confort la parcare și acces direct. O terasă generoasă (21,51 mp) extinde experiența diurnă spre exterior.
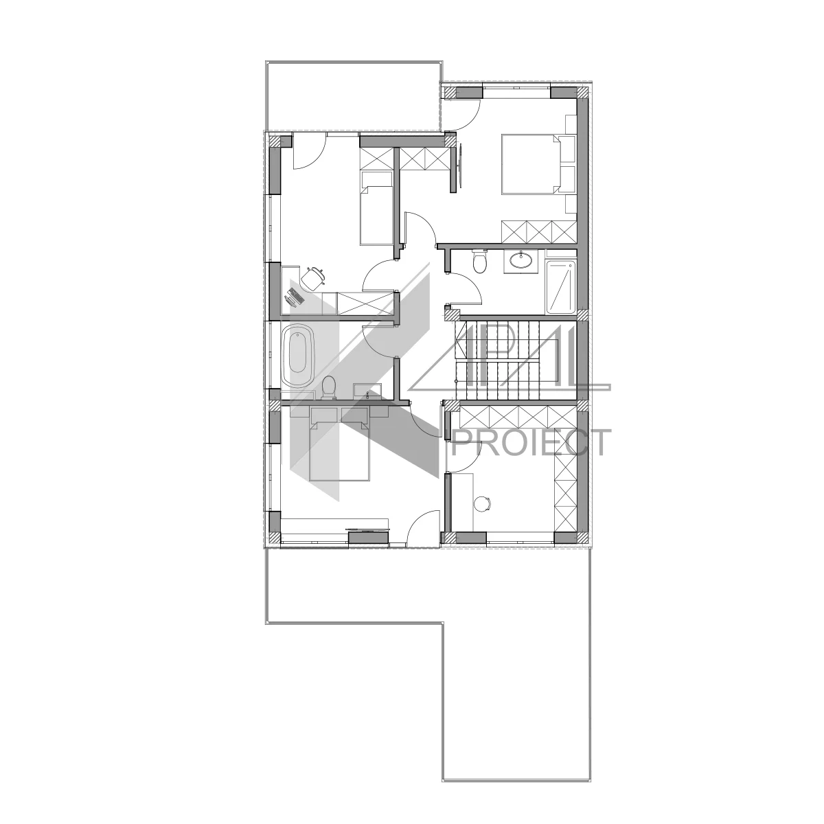
La etaj, zona de noapte oferă 3 dormitoare bine proporționate. Dormitorul matrimonial se remarcă prin dressingul dedicat (11,18 mp) și accesul către o terasă amplă (33,32 mp), veritabilă cameră exterioară. Încă două dormitoare deservite de două băi asigură confortul familiei, în timp ce balconul (8,37 mp) și golurile vitrate mari aduc lumină naturală din abundență pe tot parcursul zilei.
În ansamblu, proiectul este o rezolvare elegantă pentru o casă cuplată, cu suprafață utilă de 164,33 mp, terase/balcoane total 63,20 mp și acoperiș tip șarpantă. Raportul echilibrat între estetică și funcțiune, alături de finisajele neutre și detaliile contemporane, oferă o locuință actuală, eficientă și luminoasă, perfectă pentru familiile care apreciază clasicul reinterpretat în cheie modernă.












