Proiectul propune o locuință modernă cu funcțiune mixtă, ce îmbină zona de business la nivelul parterului cu spații rezidențiale generoase dispuse pe două niveluri superioare. Clădirea este concepută pentru a răspunde atât nevoilor unei familii numeroase, cât și cerințelor unor activități economice desfășurate într-un cadru profesional.
Volumetria este articulată și dinamică, cu retrageri și console care generează balcoane ample și contribuie la expresivitatea fațadelor. Alternanța dintre tencuieli deschise, registre gri închis și panouri cu aspect de lemn conferă clădirii un caracter contemporan, elegant și coerent.
Zona rezidențială beneficiază de spații ample de socializare, în special prin livingul generos situat la etajul 1 și prin zona de zi de la etajul 2, care se deschide către balcoane de mari dimensiuni. Parapetele din sticlă securizată și suprafețele vitrate verticale accentuează transparența și relația cu exteriorul.
Prin dimensiuni, organizare și expresie arhitecturală, imobilul se adresează familiilor care apreciază spațiile largi și confortul ridicat, dar și beneficiarilor care doresc să integreze activitatea profesională în aceeași clădire cu locuința.
Subsol
Cameră tehnică A – 7.91 mp
Cameră tehnică B – 8.92 mp
Cameră tehnică C – 16.33 mp
Cameră tehnică D – 64.13 mp
Cameră tehnică E – 61.11 mp
Casă scării – 5.87 mp
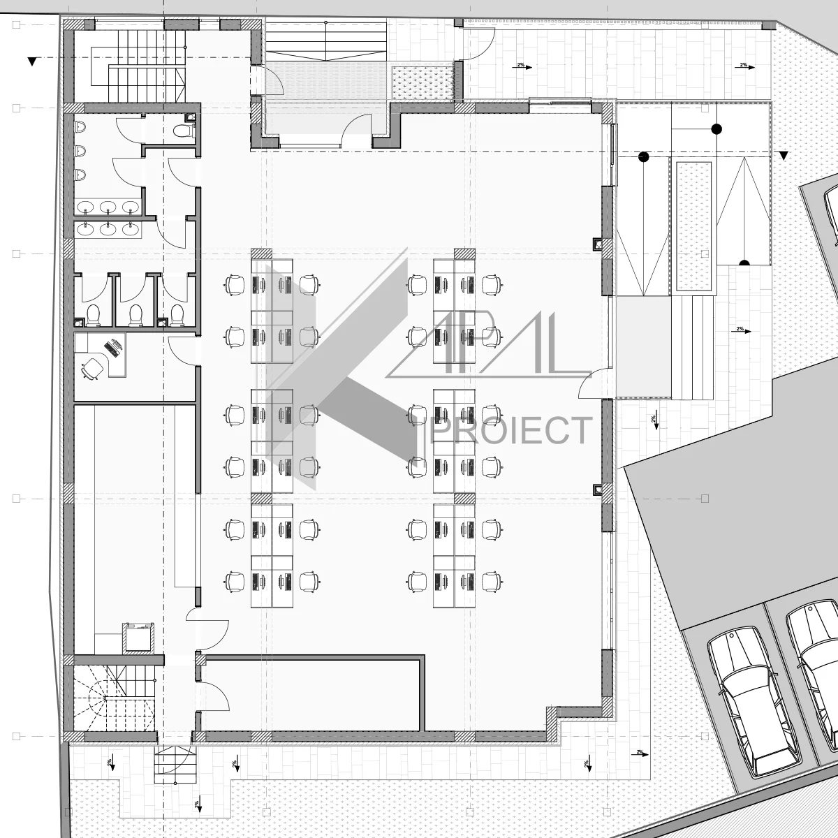
Parter – Zonă sedii firme
Hol A – 2.23 mp (nod circulație 1)
Cameră tehnică – 12.92 mp
Depozitare – 25.50 mp
Birou – 6.99 mp
Grup sanitar femei – 5.25 mp
Toaletă 1 – 1.59 mp
Toaletă 2 – 1.60 mp
Toaletă 3 – 1.60 mp
Hol B – 2.83 mp
Grup sanitar bărbați – 5.75 mp
Toaletă – 1.30 mp
Sediu firmă – 186.05 mp
Hol C – 3.99 mp (nod circulație 2)
Terasă acces A – 7.35 mp
Terasă acces B – 4.78 mp
Etaj 1 – Zonă rezidențială / zi
Hol A – 2.23 mp (nod circulație 1)
Cameră tehnică – 12.90 mp
Depozitare A – 25.50 mp
Living + loc de luat masa – 190.69 mp
Depozitare B – 6.99 mp
Depozitare C – 5.25 mp
Depozitare D – 1.60 mp
Depozitare E – 1.60 mp
Depozitare F – 1.59 mp
Hol B – 2.83 mp
Grup sanitar A – 5.75 mp
Toaletă – 1.23 mp
Hol C – 3.99 mp (nod circulație 2)
Balcon – 12.27 mp
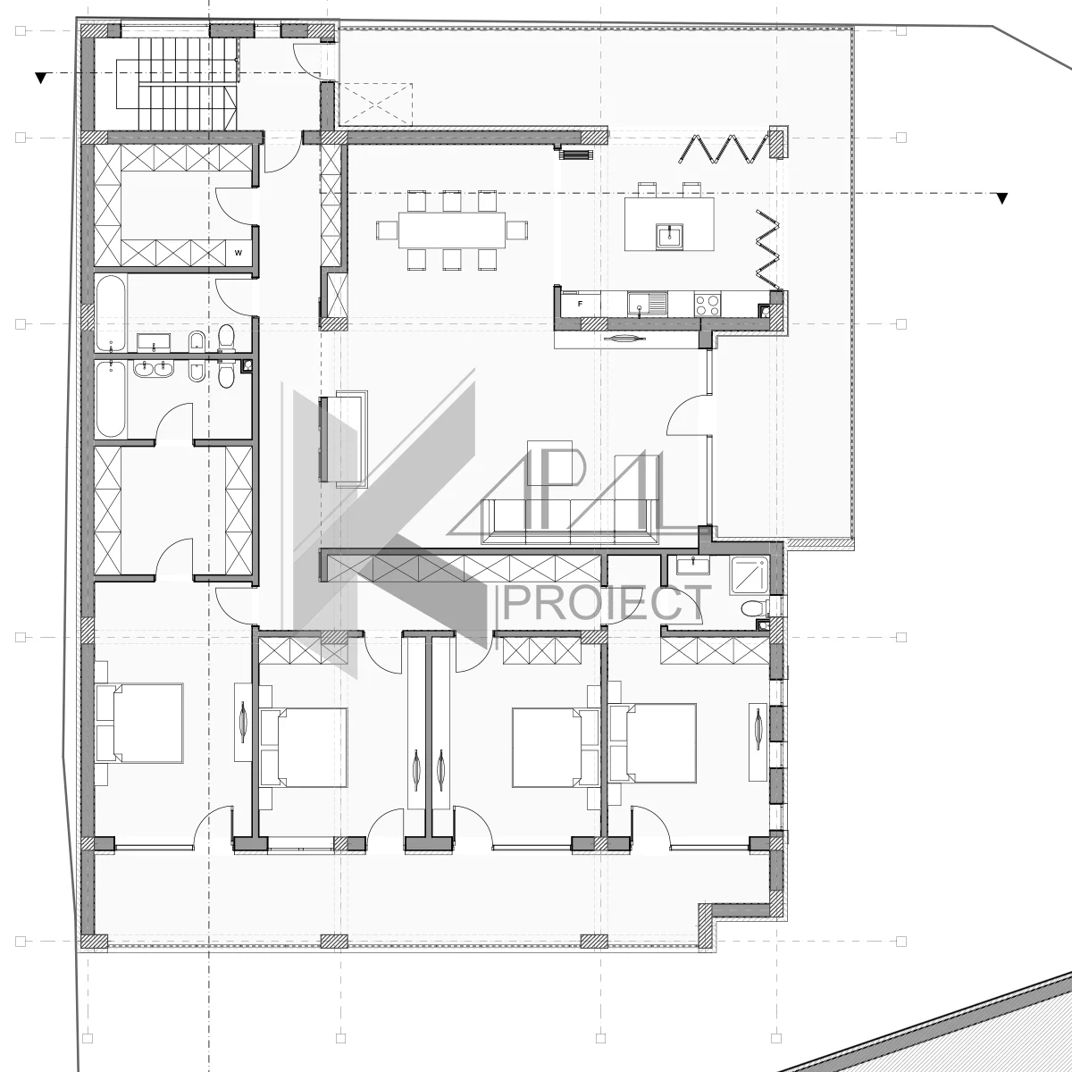
Etaj 2 – Zonă de noapte + bucătărie
Dormitor A – 18.64 mp
Baie – 3.83 mp
Dormitor B – 17.03 mp
Dormitor C – 16.78 mp
Dormitor D – 20.41 mp
Dressing – 10.30 mp
Baie – 6.32 mp
Baie comună – 6.39 mp
Depozitare – 9.77 mp
Hol – 3.99 mp (nod circulație)
Cameră multifuncțională – 61.36 mp
Bucătărie – 18.26 mp
Balcon – 29.90 mp
Balcon – 47.26 mp













